Projektová činnost

Před samotnou realizací zahrady Vám rádi zpracujeme tzv. projektovou dokumentaci. Jedná se o profesionální návrh zahradních úprav, který řeší daný prostor do nejmenšího detailu. Naše architektky vypracovávají projekty jak pro soukromé zahrady, tak pro veřejná místa.

Tvorba projektu má několik fází, během nichž probíhají průběžné společné konzultace:

Seznámení se s Vašimi přáními a s řešeným místem, fotodokumentace

Každý prostor je individuální a proto k němu také individuálně přistupujeme. Rovněž každý klient má své vlastní požadavky a představy o zahradě a životě v ní. Díky tomu je projekt vždy unikátní a šitý klientovi na míru. Pokud si však myslíte, že žádnou představu ani zvláštní přání nemáte, nevadí. Za roky zkušeností již dokážeme poznat, co od zahrady očekáváte, aniž byste to v první chvíli možná sami tušili. Rádi Vám s tím pomůžeme.

Zaměření pozemku, inventarizace dřevin

Přesné zaměření všech délek, výšek, objektů, zeleně atd. umožní přesnou a snazší budoucí realizaci zahrady, zároveň poskytne data pro správnou kalkulaci všech hmot a materiálů.  Pokud se na Vaší zahradě již vyskytují nějaké rostliny, je třeba posoudit jejich zdravotní stav, vhodnost použití či estetické působení. K tomu všemu slouží inventarizace dřevin.

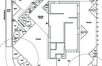
Studie – návrh

Studie je vlastní řešení prostoru zahrady. Jsou zde vidět navržená posezení, objekty, cesty či další zpevněné plochy, záhony i stromy, jejich rozmístění. Ze studie je patrná myšlenka, kudy se architektka ubírá, abyste se k ní mohli vyjádřit a hned na začátku říci, zda se Vám nápad líbí. První návrh se pak většinou upravuje až k Vaší plné spokojenosti. Součástí studie jsou inspirační fotografie jiných zahrad, abyste si vše dokázali lépe představit. Často pracujeme přímo s odbornou zahradní a krajinářskou literaturou.  

Vizualizace

Spolu s návrhem a inspiračními fotografiemi dotvářejí Vaši celkovou představu o námi navržené studii. Zde vidíte počítačově či ručně zpracované perspektivní pohledy na svou novou zahradu. Vizualizace bývají tou nejsnazší cestou jak se rozhodnout, zda se Vám návrh líbí či nelíbí.

Osazovací plán - rostliny

V další fázi projektové dokumentace společně s Vámi vybíráme vhodné rostliny a zapracováváme je do návrhu. Pomocí fotografií rostlin Vám naše architektky představí konkrétní navržené rostliny, jejich vlastnosti a vzhled v průběhu roku. I zde je samozřejmě prostor pro Vaše názory, oblíbené květiny, barvy. Výsledkem je tzv. osazovací plán a seznam rostlin, které slouží především zahradníkům během realizace. 

Technické detaily

V závěru tvorby projektové dokumentace řešíme a rozpracováváme všechny případně navržené technické prvky (např. altány, pergoly, zídky, terénní modelace), aby bylo vše přesně a srozumitelně připraveno pro realizaci Vaší zahrady.

Rozpočet, výkaz výměr a počtů, průvodní zpráva, komplementace

Po doladění všech detailů jsme schopni přesně spočítat potřebné množství materiálů, rostlin aj. a následně i rozpočet navržených zahradních úprav. Průvodní zpráva do vysvětluje výkresovou část projektové dokumentace. Vše nakonec dostanete v papírové a elektronické podobě.

Vzorový projekt soukromé zahrady

  • 01

  • 02

  • 03

  • 04

  • 05

  • 06

  • 07

  • 08

  • 09

  • 10

Fotografie Ivo Weiss
Majitel - kontaktní osoba

Ivo Weiss, Dis.

(+420) 603 924 117 - Tato e-mailová adresa je chráněna před spamboty. Pro její zobrazení musíte mít povolen Javascript.

Logo

Zahradní architetka

Ing. Zuzana Stehlíková

Tato e-mailová adresa je chráněna před spamboty. Pro její zobrazení musíte mít povolen Javascript.

AZS projektant

Ing. Jan Krob

Tato e-mailová adresa je chráněna před spamboty. Pro její zobrazení musíte mít povolen Javascript.

Logo

Zahradnická společnost

Fakturační adresa


Weiss & Wild s.r.o.
Konojedská 1591/41
100 00 Praha 10

Sociální sítě